


对于许多买了新房的人来说,最操心的就是房子装修的问题。因此,不少人选择在装修时“半包”给家装公司。本期家装故事,记者为消费者带来阳光栖谷的一处装修案例。该业主将装修工程全部委托给我市恒丰装饰公司,经过家装公司与业主不断协商沟通,最终房屋呈现的实际效果达到了业主的要求。不久前,业主已经顺利入住。
【工地档案】
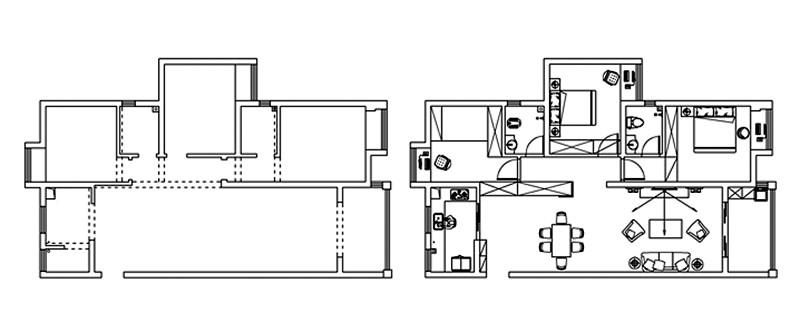
户型:三室两厅一厨两卫工程面积:139㎡装修风格:现代风格工程造价:14万余元装修方式:全包
装饰对称 风格统一
记者从玄关进入时,一束阳光刚好透过阳台打进客厅地板上。整个客厅宽敞透亮,阳台采光很好。进入客厅发现,很多装饰非常对称,而且几个部分的装饰风格完全统一。
经过了解才知道,原来本期女业主特别喜欢风格统一的装饰。因此,家里窗帘全部一样,卧室、客餐厅墙纸也全部一样,卫生间洁具卫浴瓷砖也是统一搭配的。
为了消减统一带来的视觉上的单调性,设计师选择用黑色不锈钢条来收边,点缀也选用黑玻璃,使得装修完毕后,整体风格显得大气现代。
由于业主要求布局上尽量统一,两个卫生间方向布局也进行了特别规划,除了窗户位置有些许不同之外,公共卫生间和卧室卫生间的其他方面都尽量设计一致。
恒丰装饰并没有像时下流行的一样,在卫生间中设计干湿分区,而是根据业主实际需求对空间进行简单的重新布局,做到了隐私性和便利性的统一。在瓷砖的选择上,仍然延续了淡雅朴素的风格,将整个房间的风格统一起来,令业主非常满意。
材料环保 美观实用
业主对厨房的功能性非常看重,由于厨房油烟大,容易脏,同时厨房内经常需要保存食物,因此业主希望在装饰材料的选择上更加谨慎。最终,恒丰装饰选择了环保、防潮、防霉、防水陶瓷橱柜,同时搭配现在流行的吸塑柜门。在保证实用性的基础上,尽量实现厨房环境的美观、整洁、大方。
业主希望卧室的装修要将环保健康放在第一位,不能使用任何可能有损家庭成员健康的装修材料。同时,业主倾向于简洁朴素的装修风格,看重实用性。在卧室装修上,恒丰装饰多次与业主进行协商沟通,最终双方敲定了装修方案,达到了业主希望的预期效果。
业主的孩子年龄尚小,女主人担心孩子在玩耍过程中受到磕碰,特地要求所有柜子拉手要和柜面持平,不能凸出来。恒丰装饰公司在综合了美观、便利性等因素后,选用了一款内嵌于柜子上的拉手,主人非常满意。
由于业主喜欢植物,特别爱养花种草,设计师在电视柜两旁摆放了几株植物。同时,为了防止墙纸过于单调,设计师选择了几幅插画镶嵌其中,插画的主题也是主人喜欢的植物。
实习生 李尔
本期推荐新闻
